Passar para o Conteúdo Principal
Câmara Municipal de Vagos

Alteração Parcial Plano da G. Boa Hora

29 Dezembro 2010
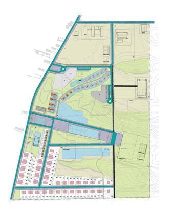
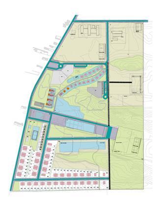
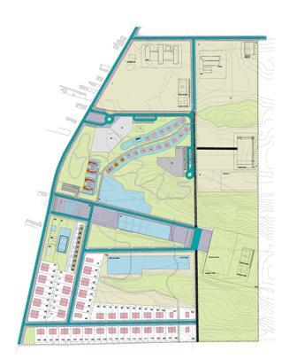
Entrou em vigor a Alteração Parcial ao Plano de Pormenor da Gafanha da Boa Hora / Floresta, que foi aprovado na sessão ordinária da Assembleia Municipal de Vagos de 29 de Dezembro de 2010
Entrou em vigor a Alteração Parcial ao Plano de Pormenor da Gafanha da Boa Hora / Floresta, que foi aprovado na sessão ordinária da Assembleia Municipal de Vagos de 29 de Dezembro de 2010, e publicada em Diário da Republica no dia 17 de Janeiro de 2011, com o aviso nº 1700/2011.

Aviso Alteracao Parcial PP Gafanha Boa Hora - Vagos

PL11_Condicionantes

PL12_Sintese

Reg alteracao PP floresta

Conteúdo atualizado em4 de fevereiro de 2026às 19:15